Este site utiliza cookies para permitir a mudança de língua e o armazenamento dos seus imóveis favoritos. Ao utilizar este site, concorda que o mesmo utilize cookies.

T3 Novo a 200m do Mar | Rooftop com Piscina e Vista Mar | Praia da Consolação

605.000€




Referência

CPT-216631

Natureza

Venda

Tipo de Imóvel

Apartamento

Tipologia

T3

Estado

Em Construção

Certificado energético

A

Ano

2025


Distrito

Leiria

Concelho

Peniche

Freguesia

Atouguia da Baleia

Código Postal

2525-150


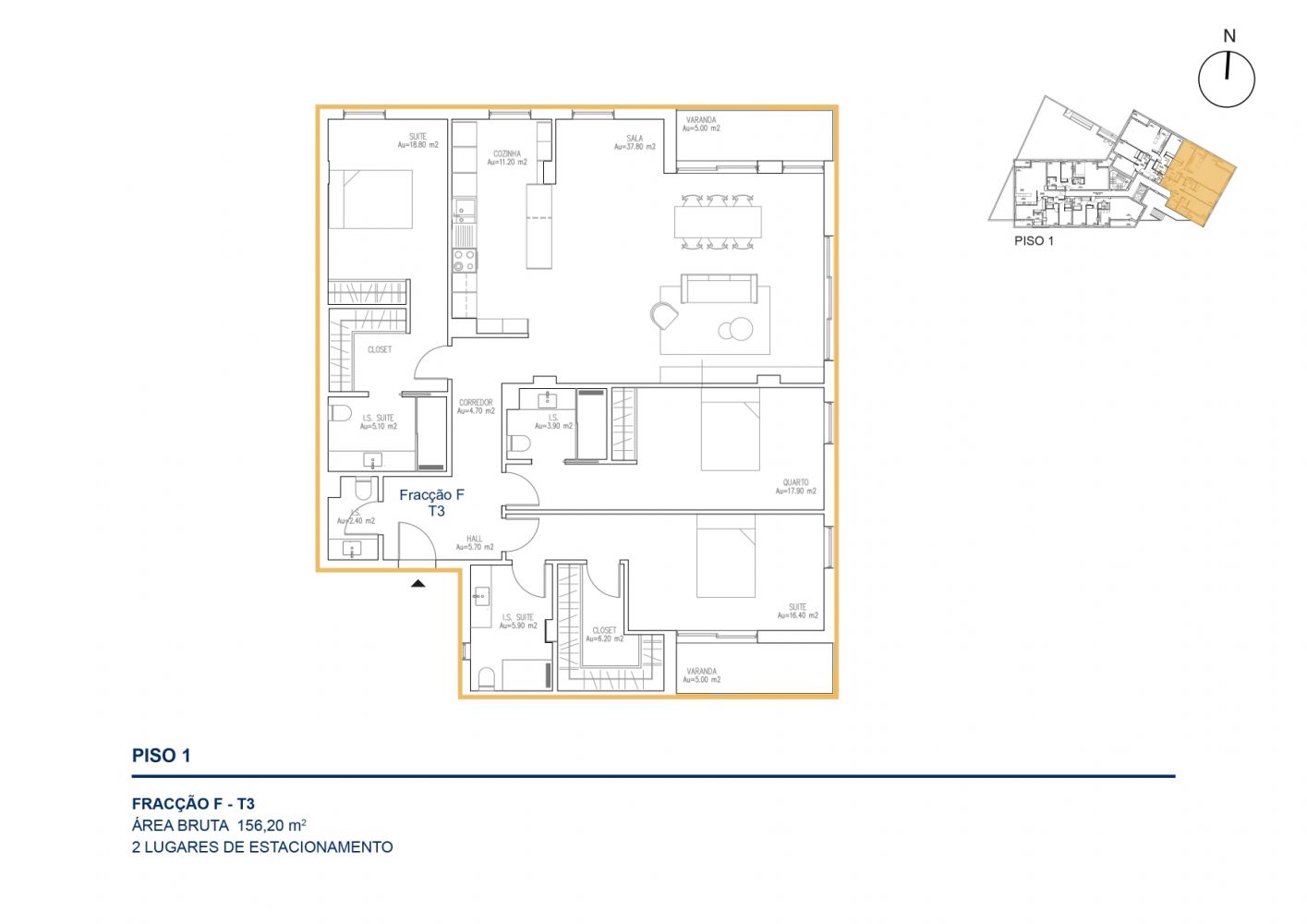
Área Útil

136 m2

Área Bruta

156.2 m2

Área de Terreno

0 m2



Contactar Imobiliária

*Preenchimento obrigatório
Ao clicar em 'Enviar', declara que aceita a nossa Política de Privacidade.
T3 Novo a 200m do Mar | Rooftop com Piscina e Vista Mar | Praia da Consolação

Apartamento T3 inserido no empreendimento Consolação Beach, localizado a apenas 200 metros da Praia da Consolação, onde se destacam o conforto, a qualidade e uma localização privilegiada na Costa de Prata.

Situado ao nível do primeiro piso, este imóvel dispõe de uma espaçosa sala em open space com cozinha totalmente equipada (forno, placa de indução, exaustor, micro-ondas, frigorífico combinado, máquina de lavar loiça e máquina de lavar e secar roupa). A sala dispõe de acesso direto a uma varanda, perfeita para desfrutar de momentos de tranquilidade. Conta ainda com sistema de climatização através de ar condicionado e bomba de calor, garantindo eficiência energética e conforto durante todo o ano.

A zona privada é composta por 3 suites, duas suites incluem zona de closet, enquanto a terceira suite dispõe de um roupeiro embutido. Um dos quartos em suíte tem acesso direto a uma varanda, criando um espaço exterior reservado e acolhedor. Existe ainda uma casa de banho de serviço adicional.

Inclui dois lugares de estacionamento no piso -1, proporcionando comodidade e segurança.

O empreendimento oferece piscina no rooftop com vista mar, zona de lazer exclusiva, elevadores e áreas comuns modernas, proporcionando conforto e qualidade de vida.

Localização premium, próxima de Peniche, Baleal, Supertubos e a 1 hora de Lisboa, ideal para habitação permanente, casa de férias ou investimento seguro.

Entrega prevista: 1.º semestre de 2027.

Não perca esta oportunidade. Entre em contacto para mais informações. Estamos ao seu dispor.
Geral
ClimatizaçãoAr condicionado:Sim
ClimatizaçãoBomba de calor:Sim
CaixilhariaPVC:Sim
CaixilhariaVidro Duplo:Sim
Exposição SolarNascente:Sim
Exposição SolarSul:Sim
GaragemLugar Interior:Sim
GeraisNº de Casas de Banho:4
GeraisNº de Terraços:2
GeraisArmário de roupa / closet:Sim
GeraisSuite:Sim
GeraisAdaptado a mobilidade reduzida:Sim
GeraisRecomendado para crianças:Sim
CozinhaMóveis lacado:Sim
PavimentoPiso vinílico:Sim
Edificio
GeraisNº de Varandas:2
GeraisNº de Lugares de Estacionamento:2
GeraisNº de Piscinas:1
GeraisEstacionamento incluido:Sim
ElevadorNº de Elevadores:2
ElevadorVintage:Sim
EquipamentoPiscina exterior:Sim
Domótica
GeraisEstores elétricos:Sim
Zona
GeraisAuto-Estrada:Sim
GeraisPerto de mar:Sim
ProximidadeJardins:Sim
ProximidadePadarias:Sim
ProximidadePraias:Sim
ProximidadeServiços públicos:Sim
AcessosAlcatrão:Sim
CentralidadeJunto à cidade:Sim

Este imóvel não tem áreas definidas.

Imóveis
Semelhantes

Apartamento
Venda
VENDIDO

Preço sob consulta

Apartamento T2 - Peniche

Preço sob consulta

Leiria / Peniche / Peniche


Ref: CPT-215023

Ref: CPT-215023

97 m2

2

1

Apartamento
Venda
NOVA CONSTRUÇÃO

460.000€

T3 Novo a 200m do Mar | Rooftop com Piscina e...

460.000€

Leiria / Peniche / Atouguia da Baleia


Ref: CPT-216628

Ref: CPT-216628

102.6 m2

3

3

Apartamento
Venda
VENDIDO

Preço sob consulta

Apartamento T3 Remodelado - Centro de Peniche

Preço sob consulta

Leiria / Peniche / Peniche


Ref: CPT-216536

Ref: CPT-216536

90 m2

3

2