Este site utiliza cookies para permitir a mudança de língua e o armazenamento dos seus imóveis favoritos. Ao utilizar este site, concorda que o mesmo utilize cookies.

T3 Novo a 200m do Mar | Rooftop com Piscina e Vista Mar | Praia da Consolação

470.000€




Referência

CPT-216629

Natureza

Venda

Tipo de Imóvel

Apartamento

Tipologia

T3

Estado

Em Construção

Certificado energético

A

Ano

2025


Distrito

Leiria

Concelho

Peniche

Freguesia

Atouguia da Baleia

Código Postal

2525-443


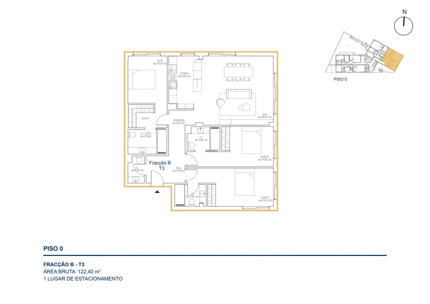
Área Útil

105.8 m2

Área Bruta

122.4 m2

Área de Terreno

0 m2



Contactar Imobiliária

*Preenchimento obrigatório
Ao clicar em 'Enviar', declara que aceita a nossa Política de Privacidade.
Apartamento T3 inserido no empreendimento Consolação Beach, localizado a apenas 200 metros da Praia da Consolação, onde se destacam o conforto, a qualidade e uma localização privilegiada na Costa de Prata.

Situado ao nível do rés-do-chão, este imóvel dispõe de uma espaçosa sala em open space com cozinha totalmente equipada (forno, placa de indução, exaustor, micro-ondas, frigorífico combinado, máquina de lavar loiça e máquina de lavar e secar roupa). Conta ainda com sistema de climatização através de ar condicionado e bomba de calor, garantindo eficiência energética e conforto durante todo o ano.

A zona privada é composta por três quartos, todos em suíte, assegurando total privacidade. A suíte principal inclui closet, enquanto as restantes dispõem de roupeiros embutidos. Existe ainda uma casa de banho de apoio.

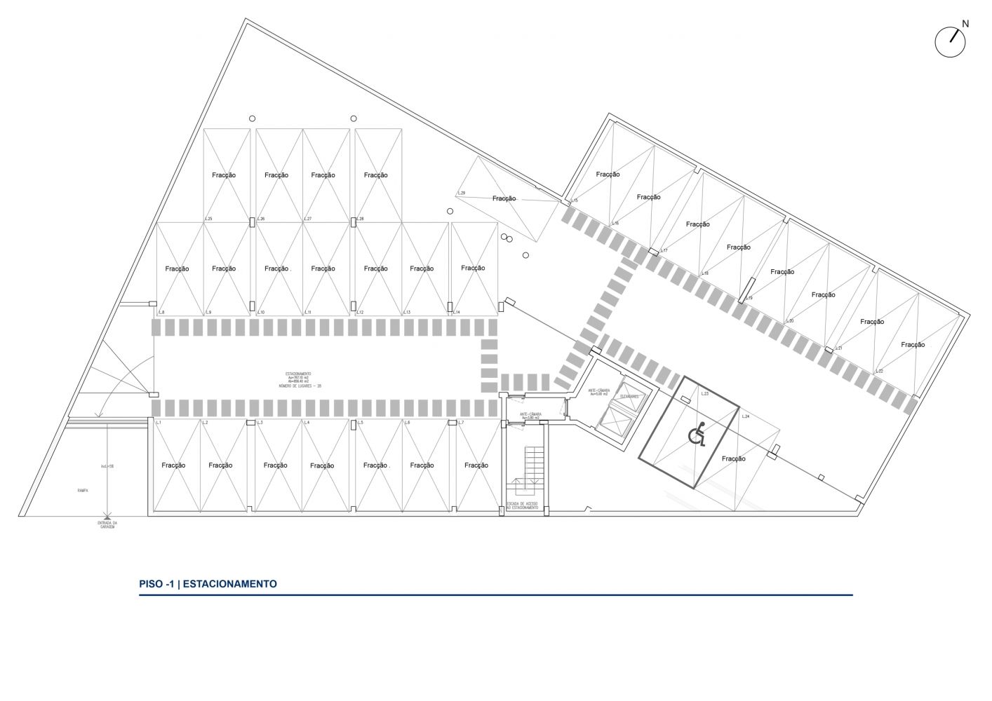
Inclui lugar de estacionamento no piso -1, proporcionando comodidade e segurança.

O empreendimento oferece piscina no rooftop com vista mar, zona de lazer exclusiva, elevadores e áreas comuns modernas, proporcionando conforto e qualidade de vida.

Localização premium, próxima de Peniche, Baleal, Supertubos e a 1 hora de Lisboa, ideal para habitação permanente, casa de férias ou investimento seguro.

Entrega prevista: 1.º semestre de 2027.

Não perca esta oportunidade. Entre em contacto para mais informações. Estamos ao seu dispor.
Geral
GeraisRés do chão:Sim
GeraisNº de Casas de Banho:4
GeraisArmário de roupa / closet:Sim
GeraisSuite:Sim
GeraisAdaptado a mobilidade reduzida:Sim
GeraisRecomendado para crianças:Sim
ClimatizaçãoAr condicionado:Sim
ClimatizaçãoBomba de calor:Sim
CaixilhariaPVC:Sim
CaixilhariaVidro Duplo:Sim
CaixilhariaEstores:Sim
Exposição SolarNascente:Sim
Exposição SolarSul:Sim
GaragemLugar Interior:Sim
CozinhaMóveis lacado:Sim
PavimentoPiso vinílico:Sim
Edificio
ElevadorNº de Elevadores:2
ElevadorVintage:Sim
Tipo de EmpreendimentoHabitação:Sim
EquipamentoPiscina exterior:Sim
EquipamentoVideo-Porteiro:Sim
GeraisNº de Piscinas:1
GeraisEstacionamento incluido:Sim
GaragemLocal:Sim
GaragemPortão automático:Sim
Domótica
GeraisEstores elétricos:Sim
Zona
GeraisAuto-Estrada:Sim
GeraisPerto de mar:Sim
ProximidadeJardins:Sim
ProximidadePadarias:Sim
ProximidadePraias:Sim
ProximidadeServiços públicos:Sim
AcessosAlcatrão:Sim
CentralidadeJunto à cidade:Sim

Este imóvel não tem áreas definidas.

Imóveis
Semelhantes

Apartamento
Venda
VENDIDO

Preço sob consulta

Apartamento T3 Remodelado com Excelente Local...

Preço sob consulta

Leiria / Peniche / Peniche


Ref: CPT-216557

Ref: CPT-216557

88 m2

3

2

Apartamento
Venda
NOVA CONSTRUÇÃO

390.000€

Apartamento T2 Novo na Praia da Consolação

390.000€

Leiria / Peniche / Atouguia da Baleia


Ref: CPT-216604

Ref: CPT-216604

84.84 m2

2

2

Sim

Apartamento
Venda
VENDIDO

Preço sob consulta

Apartamento T3 Remodelado - Centro de Peniche

Preço sob consulta

Leiria / Peniche / Peniche


Ref: CPT-216536

Ref: CPT-216536

90 m2

3

2